唐山 

[切换]

弘艺装饰 一站式家装定制装修季

您所在的位置:首页 > 家装案例 > 最新案例 > 景泰翰林-120平米-简约风格

风格:现代简约风格

户型:三居

面积:120㎡

类型:最新案例

设计师:姚志杰

工程造价:8.2万

设计说明

本案例是一个120平米的普通住宅房,空间整体设计比较简洁。给忙碌回家的主人一个寂静安逸的空间好好休息,没有了喧闹与烦恼,就静静的在这个空间享受着家庭的温馨。因为业主喜欢简单而不缺功能性的装修,所以硬装比较简单,大体的轮廓走向很明朗。在颜色搭配上使用了深浅对比色来突出房间的层次感。

客厅

餐厅

卧室

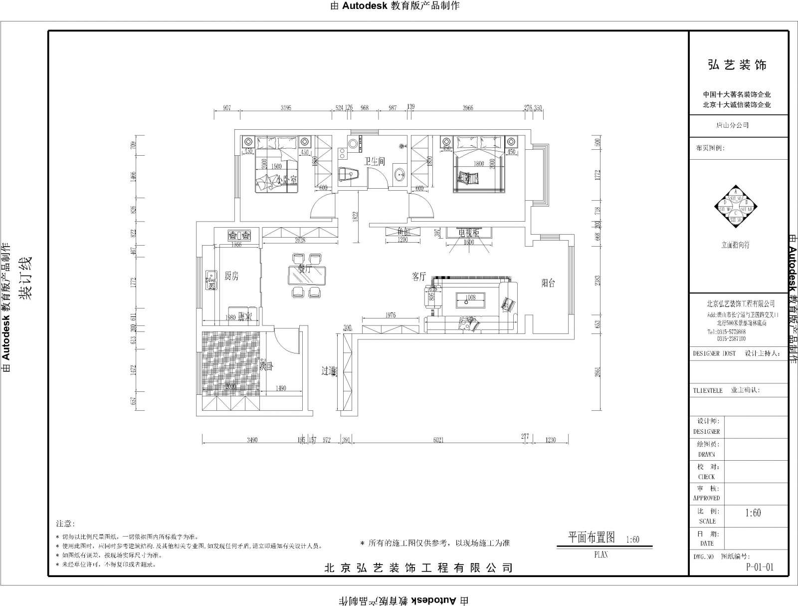
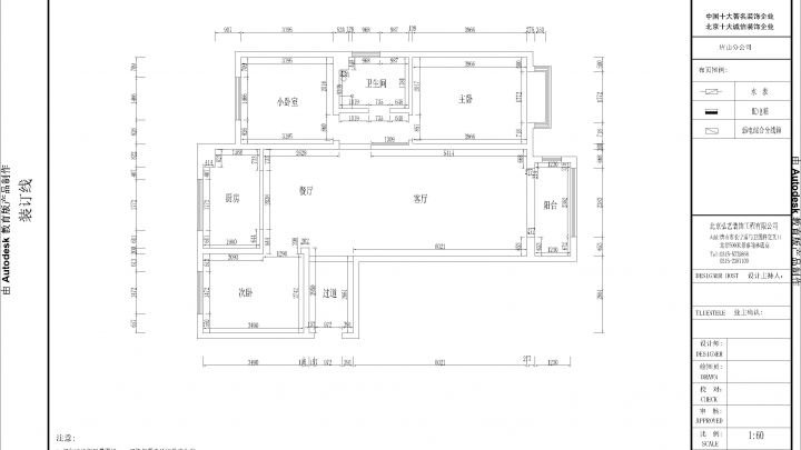
平面图

设计师

姚志杰

姚志杰

查看TA的主页
毕业院校:天津工程职业技术学院 所学专业 : 环境艺术设计 从业年限: 8 年 擅长风格:现代简约、现代极简、现代轻奢、新中式、现代中式、现代美式 获奖荣誉:中国建筑装饰协会会员 中国建筑装饰协会住宅高级设计师 设计理念:设计的目的是解决问题,不是制造问题。 代表作品:南湖一号别墅、银隆花苑别墅、泰和盛景别墅、三间房别墅、壹零壹、铂悦山、、叠山院、凤凰湖畔等
已有80人预约TA
在线咨询

免费申请户型规划

您的称呼
 请输入您的称呼
* 手机号码
 请输入您的手机号码

专业设计师1对1免费家装指导
已有500位业主申请了此服务

设计师人气榜

服务之星

为什么选择弘艺