唐山 

[切换]

弘艺装饰 一站式家装定制装修季

您所在的位置:首页 > 家装案例 > 最新案例 > 万润城-93平米-简约风格

风格:现代简约风格

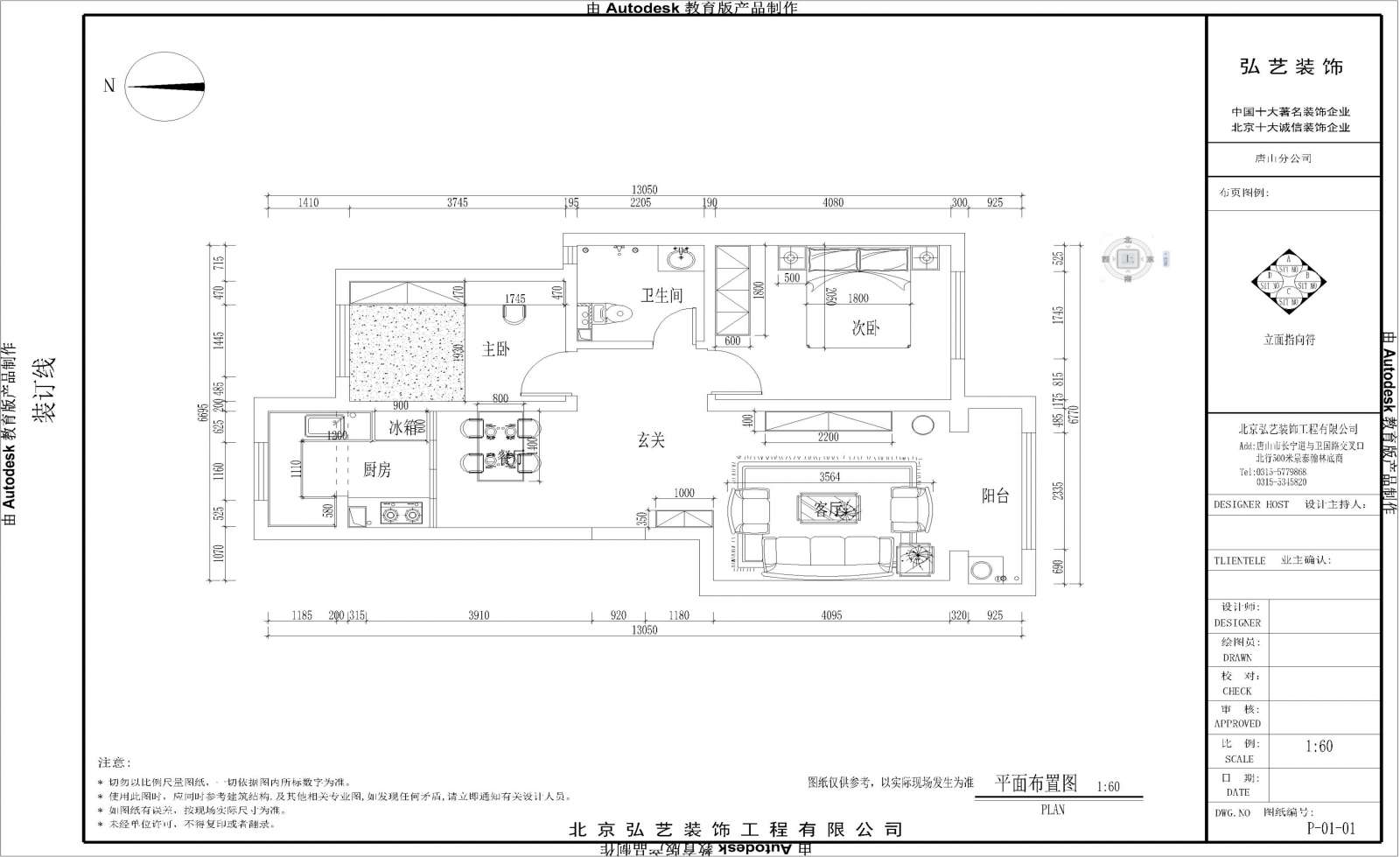
户型:两居

面积:93㎡

类型:最新案例

设计师:贾倩

工程造价:7万

设计说明

现代简约风格,它以简洁的表现形式,来满足人们对空间环境那种感性的、本能的和理性的需求,简约的空间设计通常非常含蓄,往往能达到以少胜多、以简胜繁的效果,在如今的快节奏生活中,简洁大方的装修风格更是倍受年轻人的推崇,现代风格是对现代风格中纯理性主义倾向的批判,后现代风格强调建筑及室内装潢应具有历史的延续性,但又不拘泥于传统的逻辑思维方式,探索创新造型手法,讲究人情味,常在室内设置夸张、变形的柱式和断裂的拱券,或把古典构件的抽象形式以新的手法组合在一起,即采用非传统的混合、叠加、错位、裂变等手法和象征、隐喻等手段,以期创造一种溶感性与理性、集传统与现代、揉大众与行家于一体的即"亦此亦彼"的建筑形象与室内环境。对后现代风格不能仅仅以所看到的视觉形象来评价,需要我们透过形象从设计思想来分析。

客厅

餐厅

卧室

平面图

设计师

贾倩

贾倩

查看TA的主页
就职部门 : 弘艺装饰唐山设计部 从业时间 :8 年 毕业院校 : 河北科技大学 所学专业 : 室内设计 设计理念 : 生活是创意的来源,创意源于文化,创意源于自己。 将设计融于人性,将家居带入悠闲自在的情境。设计是一种追求完美的生活态度,设计是 - 一种追求品味的生活概念。用最少的投入,来最大化的美化和利用现有空间 ; 一切随心,有心去感悟空间。 擅长风格 : 现代简约、美式、欧式、北欧、中式 设计经历 : 2008 年获新世纪首届家居典范设计大赛一等奖 2010 年作品获河北省第一届室内设计大赛二等奖 2012 年 3 月获全国第二届室内设计大赛二等奖 2013 年 8 月获海峡两岸三地室内设计大奖赛优秀奖、三等奖及最佳手绘奖 2015 年 5 月获杯海峡两岸四地室内设计大奖赛一等奖 2016 年 8 月获海峡两岸四地室内设计大赛河北省优秀室内建筑设计师 唐山案例 : 金域蓝湾、橡树湾、兴盛大成、唐城一零一、水电首郡、天昱金元、便阳华府、金岸红堡、铂悦山、景泰翰林等。
已有76人预约TA
在线咨询

免费申请户型规划

您的称呼
 请输入您的称呼
* 手机号码
 请输入您的手机号码

专业设计师1对1免费家装指导
已有500位业主申请了此服务

设计师人气榜

服务之星

为什么选择弘艺