唐山 

[切换]

弘艺装饰 一站式家装定制装修季

您所在的位置:首页 > 家装案例 > 景泰翰林-87平米-新中式风格

风格:新中式风格

户型:两居

面积:87㎡

类型:家装案例

设计师:贾倩

工程造价:6万

设计说明

新中式风格不是纯粹的元素堆砌,而是通过对传统文化的认识,将现代元素和传统元素结合在一起,以现代人的审美需求来打造富有传统韵味的事物,让传统艺术在当今社会得到合适的体现。新中式具有中国传统风格文化意义在当前时代背景下的演绎,是对中国当代文化充分理解基础上的当代设计。新中式是传承传统中式风格的精髓,通过与现代潮流的对话碰撞而产生的创新。

客厅

卧室

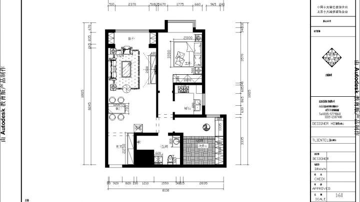
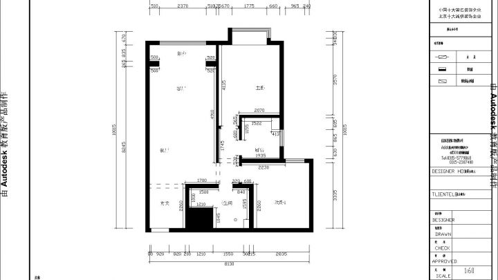
平面图

设计师

贾倩

贾倩

查看TA的主页
就职部门 : 弘艺装饰唐山设计部 从业时间 :8 年 毕业院校 : 河北科技大学 所学专业 : 室内设计 设计理念 : 生活是创意的来源,创意源于文化,创意源于自己。 将设计融于人性,将家居带入悠闲自在的情境。设计是一种追求完美的生活态度,设计是 - 一种追求品味的生活概念。用最少的投入,来最大化的美化和利用现有空间 ; 一切随心,有心去感悟空间。 擅长风格 : 现代简约、美式、欧式、北欧、中式 设计经历 : 2008 年获新世纪首届家居典范设计大赛一等奖 2010 年作品获河北省第一届室内设计大赛二等奖 2012 年 3 月获全国第二届室内设计大赛二等奖 2013 年 8 月获海峡两岸三地室内设计大奖赛优秀奖、三等奖及最佳手绘奖 2015 年 5 月获杯海峡两岸四地室内设计大奖赛一等奖 2016 年 8 月获海峡两岸四地室内设计大赛河北省优秀室内建筑设计师 唐山案例 : 金域蓝湾、橡树湾、兴盛大成、唐城一零一、水电首郡、天昱金元、便阳华府、金岸红堡、铂悦山、景泰翰林等。
已有76人预约TA
在线咨询

免费申请户型规划

您的称呼
 请输入您的称呼
* 手机号码
 请输入您的手机号码

专业设计师1对1免费家装指导
已有500位业主申请了此服务

设计师人气榜

服务之星

为什么选择弘艺