唐山 

[切换]

弘艺装饰 一站式家装定制装修季

您所在的位置:首页 > 家装案例 > 万润城-93平米-6.5万元-美式

风格:美式

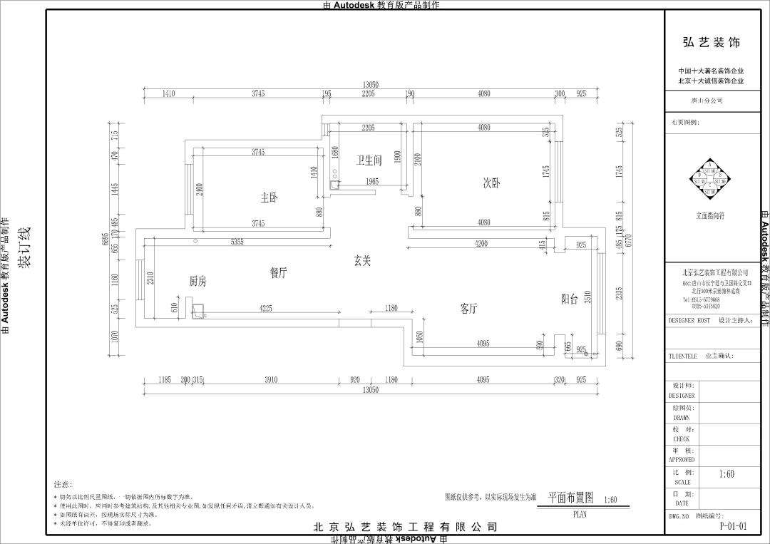
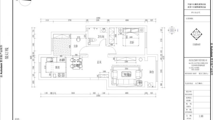
户型:两居

面积:93㎡

类型:家装案例

设计师:

工程造价:6.5万

设计说明

在美式风格中,家具一直占有重要地位,由于它造型简单、明快,而且实用,长久以来受到消费者的喜爱。美式家具传达了单纯、休闲、有组织、多功能的设计思想,让家庭成为释放压力和解放心灵的净土。美式家具的最迷人之处还在于造型、纹路、雕饰和色调细腻高贵,耐人寻味处透露亘古而久远的芬芳。美式家具较意式和法式家具来说,风格要粗犷一些。不但表现在用料上,还表现在整体感觉上。美式风格代表了一种自在、随意不羁的生活方式,没有太多造作的修饰与约束,不经意中也能成就一种休闲式的浪漫。而这些元素也正好体现了一种对生活方式的需求,装修完成的效果显得房子有文化感和高贵感的同时还不缺乏自在感与情调。

客厅

餐厅

卧室

厨房

平面图

免费申请户型规划

您的称呼
 请输入您的称呼
* 手机号码
 请输入您的手机号码

专业设计师1对1免费家装指导
已有500位业主申请了此服务

设计师人气榜

服务之星

为什么选择弘艺