Hi , 最近刚好需要家装?
唐山
优惠活动精彩不断
发现新家装修灵感
装修资金无压力
经济适用,舒适美观
一线畅销品牌
奢华不凡的风格
精美案例真实呈现
品质保证高端体验
国际一线品牌
离你最近的工地
装修指南全攻略
省心,省力,更省钱!
为业主保驾护航
体现完美服务
创造舒心家装
下一图集 >
< 上一图集
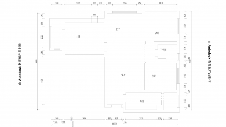
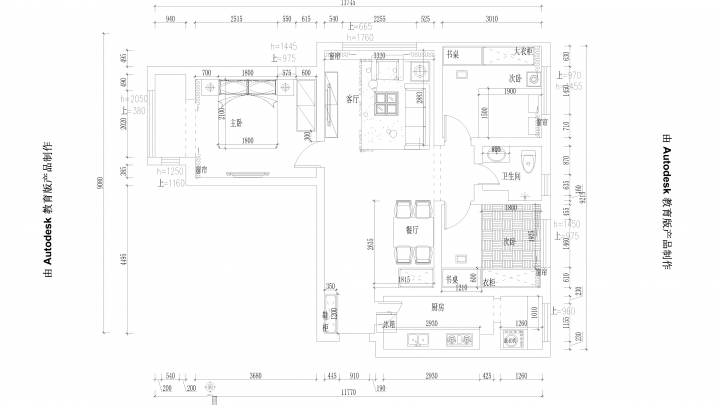
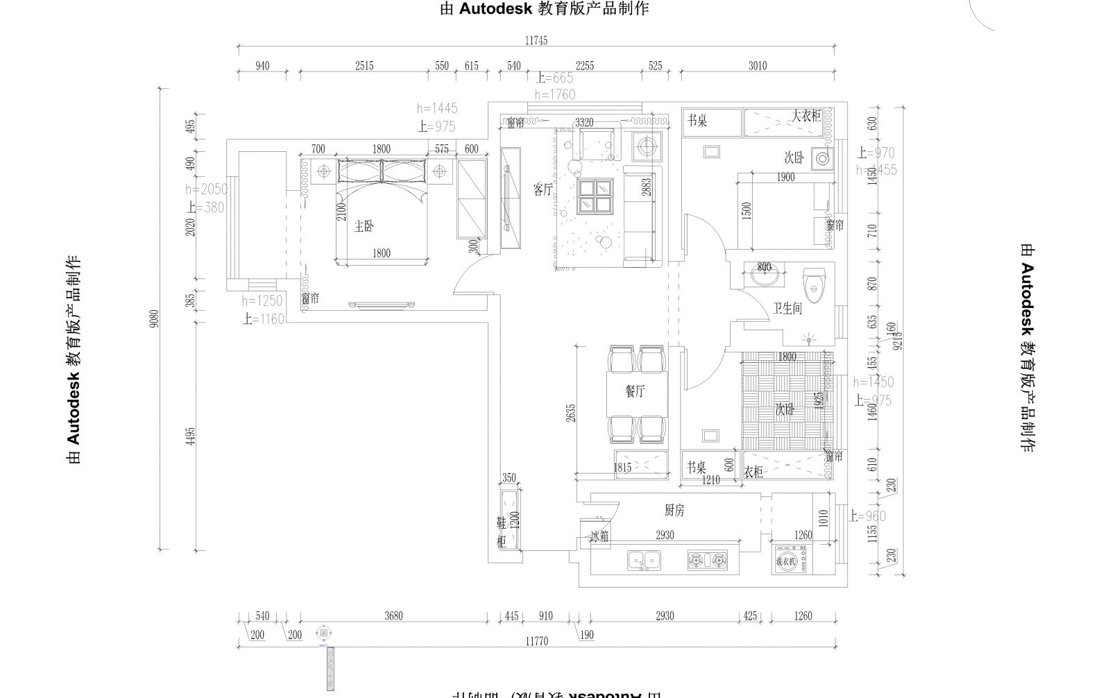
风格:现代简约风格
户型:三居
面积:106㎡
类型:最新案例
设计师:
工程造价:6.9万
专业设计师1对1免费家装指导已有500位业主申请了此服务
798尊享整装
中国建筑装饰协会认证 "中国室内装饰协会认证"
设计与实施无缝衔接, 确保效果图的实景还原度 高达95%以上
国外品牌全球直采, 同等价位配置高端
装修项目的复杂性, 决定了搭建与之匹配的 专业技术和服务
致力成为百姓的品牌装饰公司
15373481440
已有500位业主获取报价
*为了您的权益,您的隐私将被严格保密
免费咨询热线
微信咨询
即获10000套设计案例